-
Pakiet
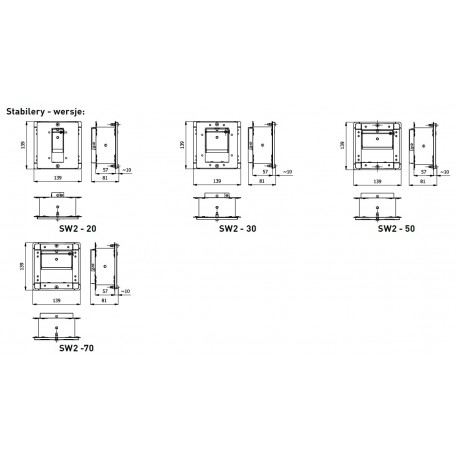
STABILER to stabilizator wentylacji, który jest przeznaczony do montażu w poziomej części kanału wentylacji grawitacyjnej i hybrydowej, zaraz za kratką wentylacyjną. Celem Stabilera jest ograniczenie nadmiernego wypływu powietrza przez kanał wentylacyjny. Urządzenie posiada konstrukcyjnie określoną wartość graniczną przepływu powietrza. Mniejszy przepływ powietrza odbywa się przy bardzo małych oporach. Próba zwiększenia przepływu powyżej wartości granicznej powoduje stopniowe zamykanie się przepustnicy i tym samym ograniczenie strumienia wypływającego powietrza na określonym poziomie. Wartości graniczne przepływu w stabilizatorach są tak dobrane, aby były zgodne z zaleceniami polskich przepisów prawnych dotyczących wentylacji. Pozwala to na łatwy dobór urządzenia w zależności od pomieszczenia, w którym jest kanał wentylacyjny.
Stabilizator można zamontować nawet, gdy w danym kanale wentylacyjnym jest już zamontowana kratka wentylacyjna rozmiaru K3. Wystarczy wówczas wyjąć kratkę z ramki. Włożyć ramkę stabilizatora i ustawić ją za ramką kratki i następnie unieruchomić za pomocą pianki montażowej. Ramka stabilizatora posiada specjalne otwory, przez które można łatwo wstrzyknąć piankę montażową. Po zastygnięciu pianki montażowej wystarczy zamontować w ramce stabilizator i na końcu założyć z powrotem kratkę wentylacyjną. sowane zestawy KSW-1/KSW2 ( zobacz poniżej ). Oprócz stabilizatora zawierają one kasetę montażową oraz kratkę wentylacyjną, która wyróżnia się prostotą i oryginalnym kształtem.
DARCO Sp. z o. o.
ul. Metalowców 43
39- 200 Dębica
darco@darco.pl
Produkt Polski
do uszczelniania systemów wentylacyjnych
Venture Industries
Nastawnik przeznaczony do regulacji obrotów wentylatorów typu TD ECOWATT, TD SILENT ECOWATT, VENT ECOWATT, CAB ECOWATT, ale również może być stosowany do nastawy obrotów innych wentylatorów wyposażonych w silniki elektronicznie komutowane (BLDC).
Blauberg
Czujnik wilgotności DPWC11200 jest przeznaczony do kontroli wilgotności w systemach wentylacyjnych, klimatyzacji i ogrzewania.
Venture Industries
Czujnik zanieczyszczenia powietrza, włącza lub wyłącza wentylator kiedy jakość powietrza spadnie poniżej nastawionego poziomu.
Blauberg
Wskaźnik LED posiada jedynie wersja CD-1.
Harmann
Brookvent
Szczelna klapa zwrotna BRF 125 jest montowana wewnątrz kanału wentylacyjnego.
Venture Industries
wewnętrzna izolacja przeciw kondensacjiZastosowanie Podstawa dachowa RS: do montażu na pokryciu płaskim, montaż w pozycji poziomej, wewnętrzna izolacja przeciw kondensacji.
Blauberg
Blauberg CPSO to solidna, metalowa tuleja kompensacyjna w kolorze białym przeznaczona do jednostek wentylacyjnych Freshpoint 200-E oraz Freshpoint 200‑E Pro.
Vents
Siłownik do przepustnic powietrza ze sprężyną powrotną.
Venture Industries
Klapa zwrotna zapobiega cyrkulacji powietrza oraz strat cieplnych.
Harmann
Potencjometr umożliwiający nastawę żądanej wartości prędkości obrotowej dla wentylatorów wyposażonych w silniki komutowane elektronicznie EC lub innych urządzeń nie wyposażonych we wbudowane potencjometry (np. EVS, STVS, ECC, iG5A).
Blauberg
AH-10/11 - okap zewnętrzny z tworzywa.
Blauberg
Wylot AH Civic LB zewnętrzny ze stali.
Venture Industries
Używane do montażu akcesoriów (JCA, JBR, JAE). Pozwala na demontaż i montaż wentylatorów bez konieczności demontażu przewodu przyłączeniowego.
SystemAir
Przepustnica samoczynna VKS
Havaco
HRX – Tyrystorowy regulator prędkości obrotowej silników jednofazowych.